AER Powered Bench/Downdraft Table
AER POWERED BENCH(APB SERIES DOWNDRAFT TABLES)
AER Powered Bench
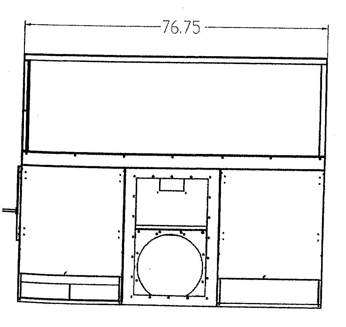
APB4250, APB4276, APB48102
| PB4250 | APB4276 | APB48102 | |
| Nominal CFM | 2500 | 4000 | 5050 |
| Table Top Size | 42”x50” | 42”x76” | 48”x102” |
| Total Filter Area | 480 | 960 | 1440 |
| Motor HP | 3 | 5 | 7.5 |
| Size, WxDxH | 50.4”x43”x62” | 76.75”x43”x62” | 103”x48”x62” |
Downdraft Tables are designed to provide efficient, cost effective control of dust, smoke, fume, and gas/vapor contaminants generated from a variety of manufacturing and process applications. Typically used for control of moderate to heavy concentrations of dry contaminants, the APB series tables can be used for grinding, polishing, and dry buffing. The self cleaning systems can be either manual or automatically controlled to minimize maintenance and reduce replacement filter costs. The AER Powered Bench will help with compliance to local OSHA regulations by drawing contaminants away from the operator’s breathing zone.
The AER Powered Bench unit comes standard with flame retardant filter cartridges, TEFC motor with non-overloading direct drive blower, dust drawer, tool-less filter access door. Three table top sizes are available 42”x50”, 42”x76”, and 48”x102”. Table top air velocities are approximately 200 feet per minute. Typical table top loads for the bench are 75 lbs per square foot.
A variety of filter options are available depending on the contaminant. If smoke is present an additional HEPA cabinet can be added.











